地 址: 河南省巩义市西村工业区
联系人: 庞经理
手 机: 15617617287
15038001853
E_mail: gyltgd@126.com
网 址: /
http://www.gyltgdc.com/

功能介绍:
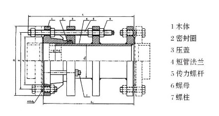
双法兰松套传力接头,型号VSSJAF(1999标准)型,由法兰式松套伸缩接头和短管法兰、传力螺杆等构件组成。它能传递被连接件的压力和推力(盲板力)和补偿管路安装误差,不能吸收轴向位移,主要用于与泵、阀门等附件的松套连接。
优点:安装简单当便、方便阀门安装。
特点:双法兰连接方式。
功能介绍:
双法兰松套传力接头,型号VSSJAF(1999标准)型,由法兰式松套伸缩接头和短管法兰、传力螺杆等构件组成。它能传递被连接件的压力和推力(盲板力)和补偿管路安装误差,不能吸收轴向位移,主要用于与泵、阀门等附件的松套连接。
优点:安装简单当便、方便阀门安装。
特点:双法兰连接方式。
VSSJAFC可拆式双法兰松套传力接头适用范围:
VSSJAFC可拆式双法兰松套传力接头适用于输送海水、淡水、冷热水、饮用水、生活污水、原油、燃油、润滑油、成品油、空气、煤气、温度不高于250度的蒸汽和颗粒粉状等介质。
VSSJAFC可拆式双法兰松套传力接头性能特点:
可拆式双法兰松套传力接头是在法兰松套补偿接头的基础上增设法兰短管及传力螺杆而成,次类型的补偿接头与松套补偿接头和松套限位补偿接头不同的是它的补偿量是指在安装及拆卸过程中的调节量,一旦将所有的螺母拧紧,它是刚性连接的,可以传递轴心力,从而保护阀门、泵等设备。
VSSJAFC可拆式双法兰松套传力接头安装简要说明:
VSSJAFC可拆式双法兰松套传力接头与法兰连接的管路中,安装时调节产品两端与法兰的安装长度,对角依次均匀拧紧压盖螺栓,使其成为一个整体,并有一定的位移量,方便安装维修时,根据现场尺寸进行调整。在工作时可以把轴向推力传递至正个管道。
可拆式双法兰松套传力接头的材质:主要有Q235碳钢、不锈钢、铸钢、球墨铸铁等。不同的用途选用不同的材质和型号。

技术参数:
| 称通径DN | 管子外径 Dw |
外形尺寸 |
法 兰 连 接 尺 寸 |
||||||||
|
L |
△L |
0.6MPa |
1.0MPa |
||||||||
|
D |
D1 |
n-Th |
b |
D |
D1 |
n-Th |
b |
||||
|
65 |
76 |
200 | 40 | 160 | 130 | 4-M12 | 16 | 185 | 145 | 4-M16 | 20 |
|
80 |
89 | 190 | 150 | 4-M16 | 18 | 200 | 160 | 8-M16 | 22 | ||
|
100 |
114 |
210 |
170 |
220 |
180 |
24 |
|||||
|
125 |
140 |
240 |
200 |
8-M16 |
20 |
250 |
210 |
26 |
|||
|
150 |
168 |
265 |
225 |
285 |
240 |
8-M20 |
|||||
|
200 |
219 |
320 |
280 |
22 |
340 |
295 |
28 |
||||
|
250 |
273 |
375 |
335 |
12-M16 |
24 |
395 |
350 |
12-M20 |
|||
|
300 |
325 |
220 |
50 |
440 |
395 |
12-M20 |
24 |
445 |
400 |
12-M20 |
28 |
|
350 |
377 | 490 | 445 | 26 | 505 | 460 | 16-M20 | 30 | |||
|
400 |
426 |
540 |
495 |
16-M20 |
28 |
565 |
515 |
16-M24 |
32 |
||
|
450 |
480 |
595 |
550 |
615 |
565 |
20-M24 |
32 |
||||
|
500 |
530 |
645 |
600 |
20-M20 |
30 |
670 |
620 |
34 |
|||
|
600 |
630 |
240 |
755 |
705 |
20-M24 |
780 |
725 |
20-M27 |
36 |
||
|
700 |
720 |
860 |
810 |
24-M24 |
32 |
895 |
840 |
24-M27 |
40 |
||
|
800 |
820 |
350 |
60 |
975 |
920 |
24-M27 |
34 |
1015 |
950 |
24-M30 |
44 |
|
900 |
920 |
1075 |
1020 |
24-M27 |
36 |
1115 |
1050 |
28-M30 |
46 |
||
|
1000 |
1020 |
1175 |
1120 |
28-M27 |
1230 |
1160 |
28-M33 |
50 |
|||
|
1200 |
1220 |
370 |
1405 |
1340 |
32-M30 |
40 |
1455 |
1380 |
32-M36 |
56 |
|
|
1400 |
1420 |
1630 |
1560 |
36-M33 |
44 |
1675 |
1590 |
36-M39 |
62 |
||
|
1600 |
1620 |
380 |
1830 |
1760 |
40-M33 |
48 |
1915 |
1820 |
40-M4 |
68 |
|
|
1800 |
1820 |
2045 |
1970 |
44-M36 |
50 |
2115 |
2020 |
44-M45 |
70 |
||
|
2000 |
2020 |
400 |
2265 |
2180 |
48-M39 |
54 |
2325 |
2230 |
48-M45 |
74 |
|
|
2200 |
2220 |
2475 |
2390 |
52-M39 |
60 |
2550 |
2440 |
52-M52 |
80 |
||
|
2400 |
2420 |
2685 |
2600 |
56-M39 |
62 |
2760 |
2650 |
56-M52 |
82 |
||
|
2600 |
2620 |
450 |
80 |
2905 |
2810 |
60-M45 |
64 |
2960 |
2850 |
60-M52 |
88 |
|
2800 |
2820 |
3115 |
3020 |
64-M45 |
68 |
3480 |
3070 |
64-M52 |
94 |
||
|
3000 |
3020 |
3315 |
3220 |
68-M45 |
70 |
3405 |
3290 |
68-M56 |
100 |
||
|
3200 |
3220 |
3525 |
3430 |
72-M45 |
76 |
|
|||||