地 址: 河南省巩义市西村工业区
联系人: 庞经理
手 机: 15617617287
15038001853
E_mail: gyltgd@126.com
网 址: /
http://www.gyltgdc.com/

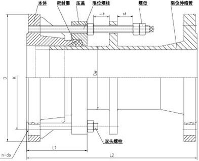
单法兰松套限位伸缩接头,型号BF/VSSJA-1或BF型,单法兰松套限位伸缩接头是由松套伸缩接头和一个限位短管组合而成。单法兰松套限位伸缩接头能防止管道因超量位移导致补偿接头的泄漏或损坏,主要用于在允许位移范围内吸收轴向位移和承受轴向压力推力的管道松套连接。
产品介绍:
单法兰松套限位伸缩接头,型号BF/VSSJA-1或BF型,单法兰松套限位伸缩接头是由松套伸缩接头和一个限位短管组合而成。单法兰松套限位伸缩接头能防止管道因超量位移导致补偿接头的泄漏或损坏,主要用于在允许位移范围内吸收轴向位移和承受轴向压力推力的管道松套连接。
VSSJA-1/B
应用范围:
BF型单法兰松套限位伸缩接头,产品适用于输送海水、淡水、冷热水、饮用水、生活污水、原油、燃油、润滑油、成品油、空气、煤气、温度不高于250度的蒸汽和颗粒粉状等介质。 单法兰松套限位伸缩接头优点:安装方便快捷、密封可靠、维修方便。
单法兰松套限位伸缩接头特点:实现了管道一边法兰连接,一边为焊接的不一致性的方便连接 VSSJA-1/BF VSSJA-
本尺寸(PN0.6 1.0MPa)
| 称尺寸 DN |
管子外径DW | 外形尺寸 | 伸缩量δ | 法兰连接尺寸 | ||||||||
| DW | D0 | L | L2 | L1 | 0.6Mpa | 1.OMpa | ||||||
| D | K | n-do | D | K | n-do | |||||||
| 65 | 76 | 76 | 340 | 340 | 105 | ±25 | 160 | 130 | 4-¢14 | 185 | 145 | 4-¢18 |
| 80 | 89 | 89 | 190 | 150 | 4-¢18 | 200 | 160 | 8-¢18 | ||||
| 100 | 108 | 108 | 21O | 170 | 220 | 180 | ||||||
| 114 | 114 | |||||||||||
| 125 | 133 | 133 | 240 | 200 | 8-¢18 | 250 | 210 | |||||
| 140 | 140 | |||||||||||
| 150 | 159 | 159 | 265 | 255 | 285 | 240 | 8-¢23 | |||||
| 168 | 168 | |||||||||||
| 200 | 219 | 219 | 320 | 280 | 340 | 295 | ||||||
| 250 | 273 | 273 | 375 | 335 | 12-¢18 | 395 | 350 | 12-¢23 | ||||
| 300 | 325 | 325 | 350 | 370 | 130 | ±32.5 | 440 | 395 | 12-¢23 | 445 | 400 | 16-¢22 |
| 350 | 377 | 377 | 490 | 445 | 505 | 460 | 16-¢26 | |||||
| 400 | 426 | 426 | 540 | 495 | 16-¢23 | 565 | 515 | 20-¢26 | ||||
| 450 | 480 | 480 | 595 | 550 | 615 | 565 | ||||||
| 500 | 530 | 530 | 645 | 600 | 20-¢23 | 670 | 620 | 20-¢30 | ||||
| 600 | 630 | 630 | 755 | 705 | 20-¢27 | 780 | 725 | 24-¢30 | ||||
| 700 | 720 | 720 | 860 | 810 | 24-¢27 | 895 | 840 | 24-¢33 | ||||
| 800 | 820 | 820 | 590 | 600 | 220 | ±65 | 975 | 920 | 24-¢30 | 1015 | 950 | 28-¢33 |
| 900 | 920 | 920 | 1075 | 1020 | 1115 | 1015 | 28-¢36 | |||||
| 1000 | 1020 | 1020 | 1175 | 1120 | 28-¢30 | 1230 | 1160 | 28-¢36 | ||||
| 1200 | 1220 | 1220 | 1405 | 1340 | 32-¢33 | 1455 | 1380 | 32-¢40 | ||||
| 1400 | 1420 | 1424 | 640 | 1630 | 1560 | 36-¢36 | 1675 | 1590 | 36-¢42 | |||
| 1600 | 1620 | 1624 | 1830 | 1760 | 40-¢36 | 1915 | 1820 | 40-¢48 | ||||
| 1800 | 1820 | 1824 | 2045 | 1970 | 44-¢39 | 2115 | 2020 | 44-¢48 | ||||
| 2000 | 2020 | 2026 | 2265 | 2180 | 48-¢42 | 2325 | 2230 | 48-¢48 | ||||
| 2200 | 2220 | 2226 | 2475 | 2390 | 52-¢42 | 2550 | 2440 | 52-¢56 | ||||
| 2400 | 2420 | 2426 | 2685 | 2600 | 56-¢42 | 2760 | 2650 | 56-¢56 | ||||
| 2600 | 2620 | 2626 | 600 | 710 | 240 | ±75 | 2905 | 2810 | 60-¢48 | 2960 | 2850 | 60-¢56 |
| 2800 | 2820 | 2826 | 3115 | 3020 | 64-¢48 | 3180 | 3070 | 64-¢56 | ||||
| 3000 | 3020 | 3026 | 3315 | 3220 | 68-¢48 | 3405 | 3290 | 68-¢60 | ||||
| 3200 | 3220 | 3230 | 3525 | 3430 | 72-¢48 | - | - | - | ||||
| 3400 | 3420 | 3432 | 3735 | 3640 | 76-¢48 | - | - | - | ||||
| 3600 | 3620 | 3632 | 3970 | 3860 | 80-¢56 | - | - | - | ||||
VSSJA-1/BF VSSJA-2/B2F型法兰松套限位伸缩接头基本尺寸(PN1.6 2.5Mpa)
| 公称尺寸DN | 管子外径DW | 外形尺寸 | 伸缩量δ | 法兰连接尺寸 | ||||||||
| Dw | do | L | L2 | L1 | 1.6Mpa | 2.5Mpa | ||||||
| D | K | n-do | D | K | n-d0 | |||||||
| 65 | 76 | 76 | 340 | 340 | 105 | ±25 | 185 | 145 | 4-¢14 | 185 | 145 | 8-¢18 |
| 80 | 89 | 89 | 200 | 160 | 8-¢18 | 200 | 160 | |||||
| 100 | 108 | 108 | 220 | 180 | 235 | 190 | 8-¢22 | |||||
| 114 | 114 | |||||||||||
| 125 | 133 | 133 | 250 | 210 | 270 | 220 | 8-¢26 | |||||
| 140 | 140 | |||||||||||
| 150 | 159 | 159 | 285 | 240 | 8-¢22 | 300 | 250 | |||||
| 168 | 168 | |||||||||||
| 200 | 219 | 219 | 340 | 295 | 12-¢22 | 360 | 31O | 12-¢26 | ||||
| 250 | 273 | 273 | 405 | 355 | 12-¢26 | 425 | 370 | 12-¢30 | ||||
| 300 | 325 | 325 | 350 | 370 | 130 | ±32.5 | 460 | 410 | 485 | 430 | 16-¢30 | |
| 350 | 377 | 377 | 520 | 470 | 16-¢26 | 555 | 490 | 16-¢33 | ||||
| 400 | 426 | 426 | 580 | 525 | 16-¢30 | 620 | 550 | 16-¢36 | ||||
| 450 | 480 | 480 | 640 | 585 | 20-¢30 | 670 | 600 | 20-¢36 | ||||
| 500 | 530 | 530 | 715 | 650 | 20-¢33 | 730 | 660 | |||||
| 600 | 630 | 630 | 840 | 770 | 20-¢36 | 845 | 770 | 20-¢39 | ||||
| 700 | 720 | 720 | 910 | 840 | 24-¢36 | 960 | 875 | 24-¢42 | ||||
| 800 | 820 | 820 | 590 | 600 | 220 | ±65 | 1025 | 950 | 24-¢39 | 1085 | 990 | 24-¢48 |
| 900 | 920 | 920 | 1125 | 1050 | 28-¢39 | 1185 | 1090 | 28-¢48 | ||||
| 1000 | 1020 | 1020 | 1255 | 1170 | 28-¢42 | 1320 | 121O | 24-¢56 | ||||
| 1200 | 1220 | 1220 | 1485 | 1390 | 32-¢48 | 1530 | 1420 | 32-¢56 | ||||
| 1400 | 1420 | 1424 | 640 | 1685 | 1590 | 36-¢48 | 1755 | 1640 | 36-¢62 | |||
| 1600 | 1620 | 1624 | 1930 | 1820 | 40-¢56 | 1975 | 1860 | 40-¢62 | ||||
| 1800 | 1820 | 1824 | 2130 | 2020 | 44-¢56 | 2195 | 2070 | 44-¢70 | ||||
| 2000 | 2020 | 2026 | 2345 | 2230 | 48-¢62 | 2425 | 2300 | 48-¢70 | ||||